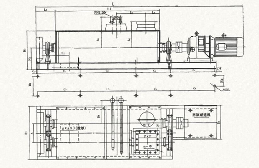
SJ型雙軸攪拌機是將粉狀物料進行噴水攪拌、混合的設備。主要使用在火力發電廠的除塵器下,也可供化工、冶金、礦山、建材等行業使用。通過控制加水量,以達到核實的濕度要求。采用兩組螺旋葉片進行攪拌。攪拌效果高,占地面積少。螺旋葉片采用高耐磨特種合金或復合陶瓷,使用壽命長。雙軸攪拌機采用擺線針輪減速器傳動,轉動平穩。噪音低。雙軸攪拌機從頂部進料,底部排料,結構合理。各結合之間的密封嚴密,運行平穩。雙軸攪拌機舍友加濕噴水系統,保證噴水均勻,調節供水量來滿足需要。采用手壓油泵集中供給四個傳動軸承潤滑油脂,方便設備的使用維護,具有省時的特點。

